Você pode encontrar novas oportunidades!
Este imóvel não está mais disponível, mas você pode conferir outros em nosso site ou deixar seu contato para receber mais informações.
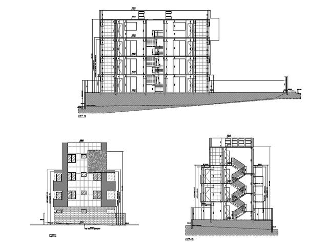
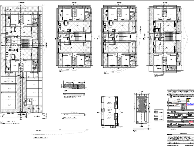
Lote plano com projeto para 8 apartamentos aprovado
Sobre o imóvel
Descrição
Apresentamos um oportunidade única para investimento em Belo Horizonte, na região do Jardim Leblon. Este terreno com área total de 360,00m² possui projeto aprovado para a construção de 8 apartamentos, além da Cindacta também já aprovada. Com localização privilegiada e excelente infraestrutura, este imóvel é uma excelente opção para quem busca boas oportunidades de negócio. A região do Jardim Leblon é conhecida por sua valorização imobiliária, com diversas opções de comércios, serviços e lazer próximos. O terreno está disponível para venda por R$ 499.000 e aceita-se permuta no local, o que torna a negociação ainda mais atrativa. A área total de 360,00m² permite a construção de um empreendimento com ótima distribuição de espaços, propiciando unidades amplamente funcionais e confortáveis. O projeto aprovado possibilita a rápida implementação do novo empreendimento, otimizando os prazos de entrega e trazendo maior segurança ao investidor. Não perca essa oportunidade de investir em um ótimo terreno, com projeto aprovado e localização privilegiada em Belo Horizonte. Agende uma visita e conheça de perto este excelente negócio. Sua chance de investir com segurança e garantia de valorização está aqui. Terreno para Venda em região valorizada do bairro Jardim Leblon, em Belo Horizonte. Não encontrou o que procurava ou deseja mais informações sobre Terreno em Belo Horizonte? Entre em contato com nossa equipe pelo telefone (31) 99174-0409. A Deltalar Imóveis tem mais opções de apartamentos, casas residenciais e comerciais, sobrados, terrenos, lojas e barracões para venda ou locação, além de empreendimentos em construção ou lançamentos na planta em Jardim Leblon e em outras regiões de Belo Horizonte. Aqui você encontra milhares de ofertas para encontrar o imóvel que mais combina com seu estilo de vida. Negocie seu imóvel de forma totalmente online, com segurança e tranquilidade. Na Deltalar Imóveis você consegue comprar ou alugar um imóvel em Belo Horizonte mesmo não estando na cidade e com a praticidade de fazer tudo online, direto do seu computador ou smartphone. Nós criamos soluções inovadoras para simplificar a relação de proprietários, inquilinos e compradores com o mercado imobiliário. Anuncie seu imóvel! É fácil, rápido e gratuito! A Deltalar Imóveis é uma imobiliária digital com imóveis em diversas cidades do Brasil, incluindo Belo Horizonte. Na Deltalar Imóveis você consegue vender ou alugar seu imóvel muito mais rápido do que em imobiliárias tradicionais. Já vendemos e locamos diversos imóveis em Belo Horizonte, especialmente em Jardim Leblon. Isso porque temos uma equipe de marketing digital focada em produzir campanhas específicas para Belo Horizonte, o que aumenta muito o número de contatos interessados e tendo como consequência uma maior chance de vender ou alugar seu imóvel mais rápido. Contamos também com um time de programadores, corretores treinados e uma central de atendimento preparada para atender proprietários e inquilinos.
Ver mais


